2 pokoje |ul. Sudecka | Park Południowy | duży balkon|

586 500

11500 zł / m2

Dzielnica

Krzyki

Typ nieruchomości

Mieszkanie

Rodzaj oferty

Sprzedaż

Informacje szczegółowe

Powierzchnia

51 m2

Liczba pokoi

2

Piętro

parter

Ogrzewanie

Miejskie

Ogród / balkon

Balkon

Forma własności

spół-włas prawo do lokalu z KW

Rynek

Wtórny

Okna

Plastikowe

Rodzaj zabudowy

Blok

Liczba pięter w budynku

5

Opis oferty

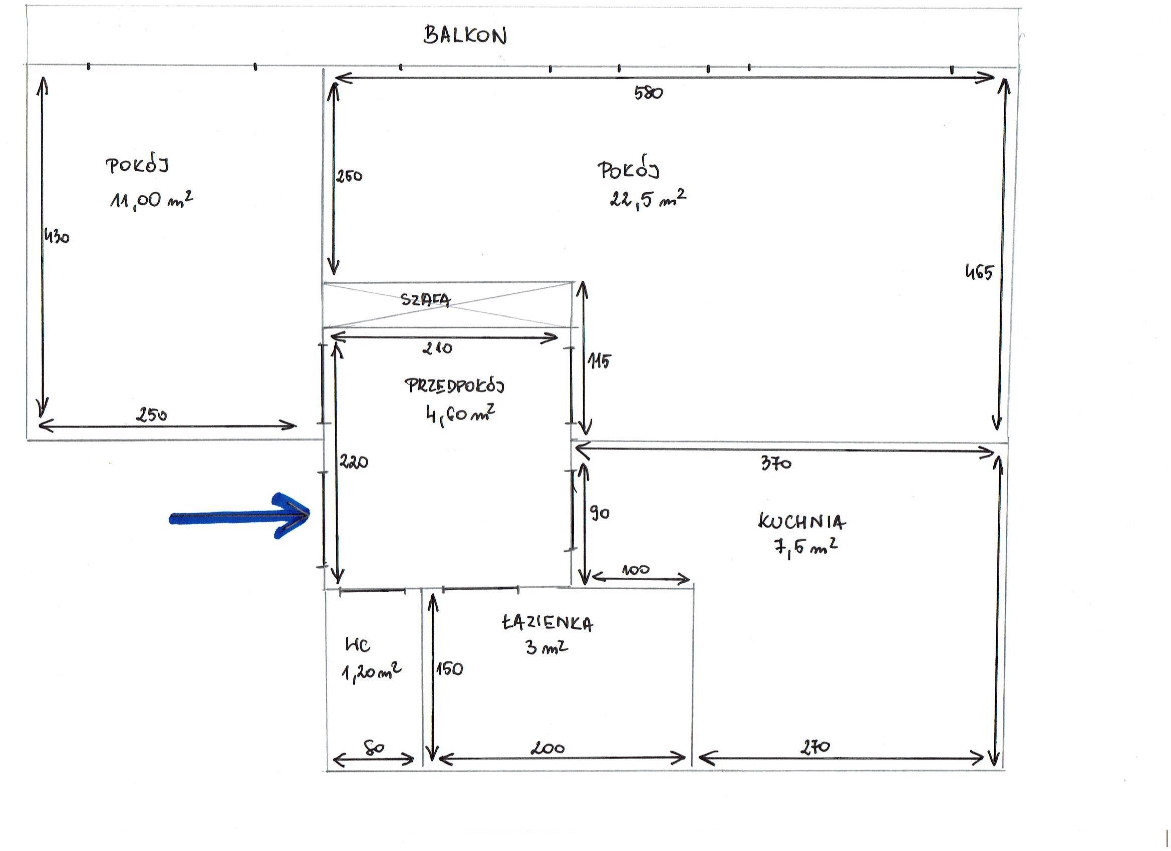
Na sprzedaż przestronne, dwupokojowe, w pełni rozkładowe mieszkanie przy ul. Sudeckiej, nieopodal Parku Południowego. Nieruchomość o powierzchni 51 m2 składa się z dwóch niezależnych, pokoi (22 i 11 m2) , oddzielnej kuchni wyposażonej w niezbędne sprzęty AGD (7,5 m 2), łazienki (3 m2) oraz WC (1,2 m2) i przedpokoju (4 m2). Z większego pokoju wyjście na duży balkon (ok. 8 m2). 

W pokojach na podłodze –  zachowany  w dobrym stanie drewniany pakiet, w kuchni łazience – kafle. 
.
Mieszkanie znajduje się na parterze, pięciopiętrowego, zadbanego bloku. Wszystkie media miejskie. Do mieszkania przynależy piwnica. 

Miesięczny czynsz: około 900 zł 

Stan prawny: spółdzielcze własnościowe prawo do lokalu z księgo wieczystą, brak obciążeń hipotecznych. 

Znakomita  lokalizacja. Blok otoczony zielenią. W okolicy aż dwa PARKI: Park Południowy oraz Park Skowronii. Tuż pod blokiem znajduje się przystanek autobusowy (144), a w ciągu kilku minut, można dojść do przystanków tramwajowych przy  ul. Powstańców Śląskich lub ul. Ślężnej. 
W okolicy liczne sklepy osiedlowe, szkoły, przedszkola. Niedaleko uczelnie wyższe: Uniwersytet Ekonomiczny oraz Uniwersytet Medyczny. 

Świetne zarówno jako inwestycja na wynajem jak i dla siebie. 

Cena: 586 500 zł 

Zapraszam na prezentację,
Weronika Burlińska 
Fidom Nieruchomości
512 461 311

Opiekun oferty

Weronika Burlińska

Doradca ds. nieruchomości

Sprawdź podobne oferty

1 / 4

Sprzedaż

Dzielnica

Krzyki

Metraż

36 m2

Liczba pokoi

1

Numer piętra

5. piętro

420 000

Sprzedaż

Dzielnica

Krzyki

Metraż

60 m2

Liczba pokoi

3

Numer piętra

parter

899 000

14983 zł / m2

Sprzedaż

Dzielnica

Krzyki

Metraż

62 m2

Liczba pokoi

2

Numer piętra

3. piętro

699 000

11274 zł / m2

Sprzedaż

Dzielnica

Krzyki

Metraż

56 m2

Liczba pokoi

3

Numer piętra

4. piętro

559 000

Kontakt

Fidom nieruchomości spółka
z ograniczoną
odpowiedzialnością

ul. Stefana Jaracza 69/3
50-305 Wrocław
516 172 575 biuro@fidom.pl

Regon 521059406
NIP 898-227-32-05